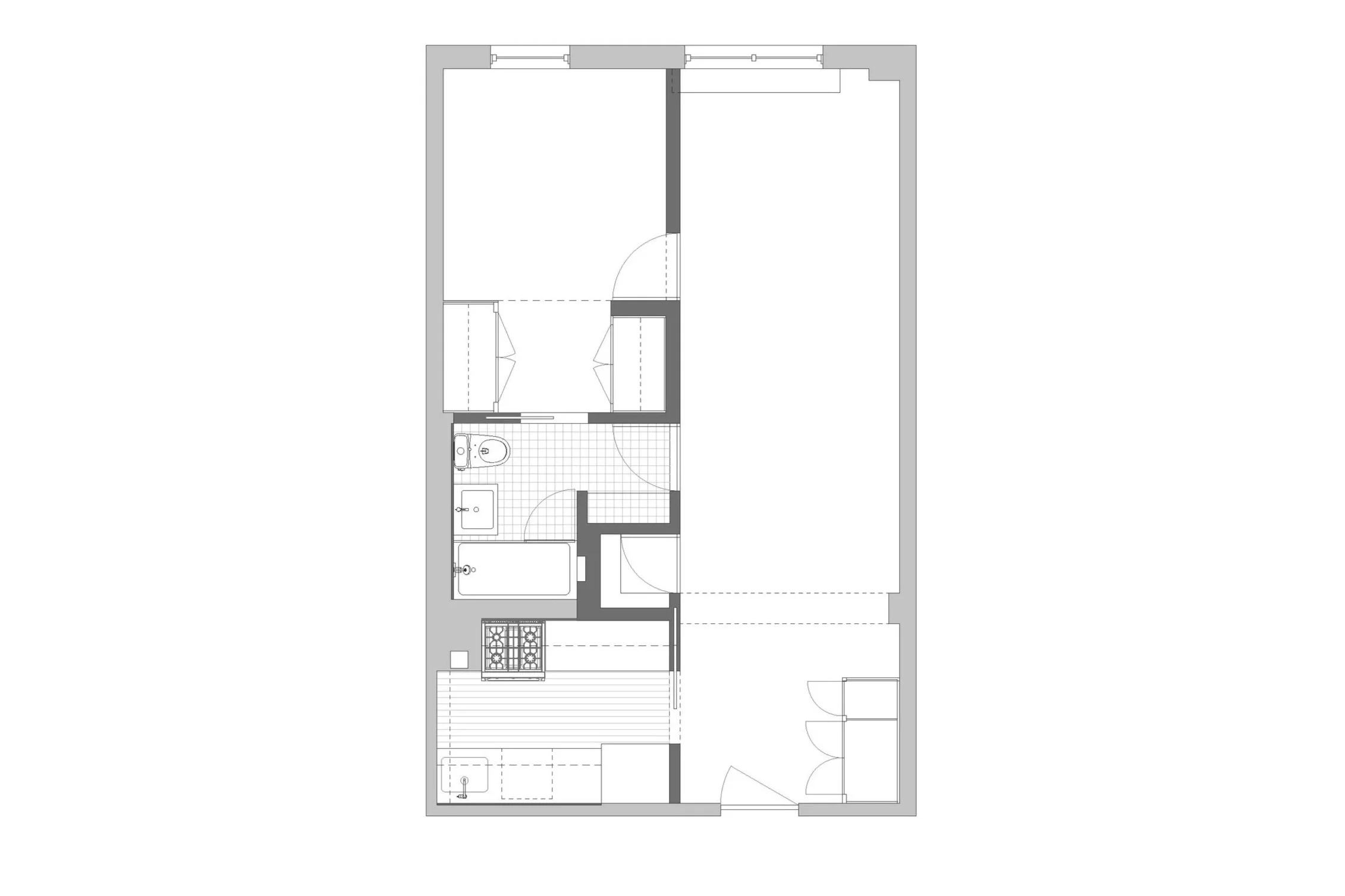
This project is a complete renovation of a very small 520 SF studio apartment in a 1960s co-op building. The design maximizes the space through the introduction of a single element: a “thick” millwork wall, which adds storage while creating distinct living, bedroom, and bathroom spaces.
Proposed Floor Plan
Existing Floor Plan
Status
In Design
Greenwich Village Apartment
New York City
